Direkt zum Inhalt


Raumpläne des Ostfalia Campus Salzgitter

Gebäude A 2. - Untergeschoss

Gebäude A 2. - Untergeschoss

Gebäude A 2. Untergeschoss

A 2 UG 05:
Seminarraum 
Rufnummer 52940

A 2 UG 08:
Herrendusche

A 2 UG 09:
Umkleide Herren

A 2 UG 11:
Damendusche

A 2 UG 09:
Umkleide Damen

A 2 UG 12:
Fotolabor

A 2 UG 13/13b:
Fotolabor

A 2 UG 16:
Audiostudio
Rufnummer 52943

A 2 UG 17a:
Labor 

A 2 UG 17b:
Labor

A 2 UG 19a/b:
Fitnessesraum 
Rufnummer 52965

A 2 UG 22:
Maschinenhalle

Gebäude A 1. - Untergeschoss

Gebäude A 1. - Untergeschoss

Gebäude A 2. Untergeschoss

A 1 UG 03:
Seminarraum

A 1 UG 07 / 08:
Lager

A 1 UG 09:
Seminarraum 

A 1 UG 10 / 11:
Foto-Studio 
Rufnummer 52959

A 1 UG 12:
Seminarraum

A 1 UG 14:
Gymnastikraum 
Rufnummer 52960

Gebäude A - Erdgeschoss

Gebäude A - Erdgeschoss

Gebäude A Erdgeschoss

A.EG.01:
Labor Elektro-, Mess-Regel-Technik 
Rufnummer 52938

A.EG.04c.:
Behinderten WC

Seminarraum:
Rufnummer 52930

A.EG.06:
Seminarraum 
Rufnummer 52930

A.EG.07:
Seminarraum 
Rufnummer 52993

A.EG.11:
Seminarraum 
Rufnummer 52928

A.EG.12:
Seminarraum 
Rufnummer 52813

A.EG.14c.:
Lager 

A.EG.14a.:
KopierrA.um 
Rufnummer 19858

A.EG.15a.:
Prüfungssekretariat

A.EG.15b.:
Dienstzimmer

A.EG.17a.:
Damen WC mit Wickeltisch

A.EG.17b.:
Herren WC mit Wickeltisch

A.EG.18:
Seminarraum 
Rufnummer 52899

A.EG.19:
Seminarraum 
Rufnummer 52985

A.EG.20:
Seminarraum 
Rufnummer 52984

A.EG.21:
Seminarraum 
Rufnummer 52983

A.EG.23:
Lehrbeauftragte Sprache 
Rufnummer 52890

A.EG.24:
Seminarraum 
Rufnummer 52979

A.EG.25:
Seminarraum 
Rufnummer 52900

A.EG.26:
Moderationsraum 
Rufnummer 52975

A.EG.27:
Labor f. angewandte Systeme 
Rufnummer 52978

A.EG.30:
Seminarraum 
Rufnummer 52903

A.EG.34:
Seminarraum 
Rufnummer 52964

A.EG.39:
Hausmeister 
Rufnummer 14150

A.EG.41:
Seminarraum 
Rufnummer 52948

A.EG.43:
Seminarraum 
Rufnummer 52929

A.EG.49:
Besprechungsraum 
Rufnummer 52939

A.EG.50a.:
WC für Rollstuhlfahrer

A.EG.68:
Seminarraum 

A.EG.70:
Zugsimmulator

Gebäude A 1. - Obergeschoss

Gebäude A 1. - Obergeschoss

Gebäude A 1. Obergeschoss

A.1 OG.01:
Poolraum P01 
Rufnummer 19853

A.1 OG.02:
Career-Center

A.1 OG.03:
Poolraum P02 
Rufnummer 19849

A.1 OG.04:
Poolraum P03 
Rufnummer 19850

A.1 OG.05:
Wirtschaftsraum

A.1 OG.06:
Besprechungsraum

A.1 OG.07:
Dienstzimmer

A.1 OG.08:
Dienstzimmer (Dekan)

A.1 OG.09:
Sekretariat (Dekan)

A.1 OG.10:
Fakultätskoordinator

A.1 OG.11:
Studierenden Service-Büro

A.1 OG.12:
Studierenden Service-Büro

A.1 OG.13:
RZ-Team

A.1 OG.14:
RZ-Team

A.1 OG.15:
Maschinenraum 
Rufnummer 19848

A.1 OG.16:
Druckerraum 
Rufnummer 19855

Mensa

Mensa

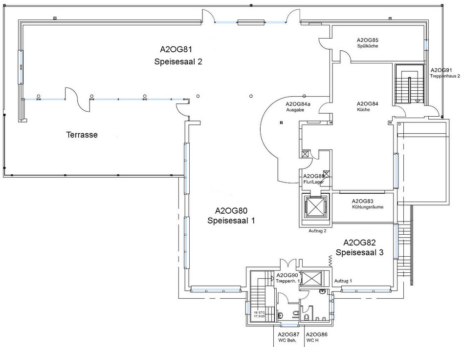
Gebäude A 2. Obergeschoss (Mensa)

A 2OG 80:
Speisesaal 1

A 2OG 80:
Speisesaal 2

A 2OG 82:
Speisesaal 3

A 2OG 87:
Behinderten WC

Mensa Leitung:
Rufnummer 79200

Mensa Essenausgabe:
Rufnummer 79210

Gebäude B - Erdgeschoss

Gebäude B - Erdgeschoss

Gebäude B Erdgeschoss

B EG 01 - B EG 03:
Dienstzimmer

B EG 04 - 05:
Lerncoach

B EG 11:
Seminarraum (Audimax) 
Rufnummer 52910 

B EG 11a:
Regieraum 
Rufnummer 52913

B EG 14:
WC für Rollstuhlfahrer / Wickeltisch 

B EG 16:
Cafeteria - Verkauf 

B EG 18:
Cafeteria / Studentischer Arbeitsraum

B EG 20:
Dienstzimmer Dez. 4 
Rufnummer 14300

B EG 21:
Brief- und Paketannahmestelle der Fakultät

Gebäude B 1. - Obergeschoss

Gebäude B 1. - Obergeschoss

Gebäude B 1. Obergeschoss

B 1 OG 01- B 1 OG 03:
Dienstzimmer

B 1 OG 04:
Besprechungsraum 
Rufnummer 52935

B 1 OG 05 - B 1 OG 09:
Dienstzimmer

B 1 OG 11:
Technik 
Rufnummer 52928 
Faxnummer 51014

B 1 OG 14 - B 1 OG 16:
Dienstzimmer

B 1 OG 17:
Seminarraum 
Rufnummer 52914

B 1 OG 18:
Seminarraum 
Rufnummer 52915

B 1 OG 19:
Seminarraum 
Rufnummer 52994

Gebäude B 2. - Obergeschoss

Gebäude B 2. - Obergeschoss

Gebäude B 2. Obergeschoss

2 OG 01- 2 OG 10:
Dienstzimmer

B 2 OG 12:
Seminarraum 
Rufnummer 52923 

Regieraum:
Rufnummer 52934

B 2 OG 13:
Nebenraum

B 2 OG 17:
Aufenthaltsbereich 
Rufnummer 52933

Gebäude C - Erdgeschoss

Gebäude C - Erdgeschoss

Gebäude C Erdgeschoss

C 006:
Bibliothek

C 007:
Dienstzimmer Bibliothek

C 008:
Dienstzimmer Teamleiter

C 009:
Taschenschränke/Garderobe

C 011:
Kopierer/Scanner

C 012:
Lager

C 013.1:
Besprechungsraum Studierende

C 013.2:
Besprechungsraum Studierende

C 014:
Hörsaal 
Rufnummer 52819

C 015:
Videostudio (Greenbox) 
Rufnummer 52833

C 018:
Requisiten/Lager

C 021:
Trinkbrunnen

C 022:
Werkstatt Ausbildungstechnik 
Rufnummer 52823

C 023:
Besprechungsraum/Gruppenarbeit

C 030:
WC für Rollstuhlfahrer / Wickeltisch

Gebäude C 1. - Obergeschoss

Gebäude C 1. - Obergeschoss

Gebäude C 1. Obergeschoss

C 106:
Dienstzimmer

C 107:
Dienstzimmer

C 109:
Seminarraum 
Rufnummer 52834

C 110:
Seminarraum 
Rufnummer 52835

C 111:
Ausleihraum (mobile Geräte) 
Rufnummer 52838

C 112:
Seminarraum 
Rufnummer 52839

C 113:
Seminarraum 
Rufnummer 52843

C 114:
Seminarraum 
Rufnummer 52844

C 115:
Seminarraum 
Rufnummer 52845

C 117:
Regie/Tonregie 
Rufnummer 52829

C 118:
Aufnahmeraum

C 119:
Fotostudio

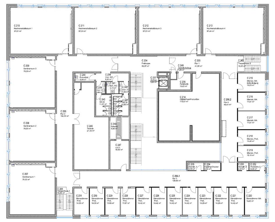
Gebäude C 2. - Obergeschoss

Gebäude C 2. - Obergeschoss

Gebäude C 2. Obergeschoss

C 207:
Seminarraum 
Rufnummer 52848

C 208:
Seminarraum 
Rufnummer 52849

C 209:
Seminarraum 
Rufnummer 52853

C 210:
Rechnerarbeitsraum 1 
Rufnummer 52859

C 211:
Rechnerarbeitsraum 2 
Rufnummer 52858

C 212:
Poolraum P04 
Rufnummer 19850

C 213:
Rechnerarbeitsraum 3 
Rufnummer 52855

C 214:
Digital-Post-Produktion 
Rufnummer 52854

C 236:
Druckerraum

C 245:
Technik

C 247:
z. b. V.

C 215-231:
Dienstzimmer

Gebäude D - Erdgeschoss

Gebäude D Erdgeschoss

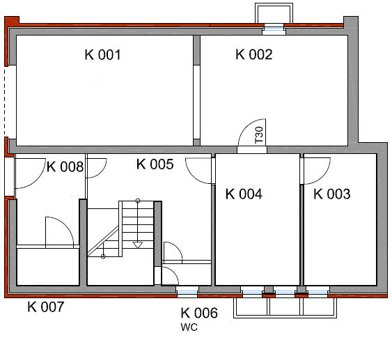
Gebäude K - Erdgeschoss

Gebäude K - Erdgeschoss

Gebäude K Erdgeschoss

K 001:
Garage

K 002:
Lagerraum

K 003:
Keller

K004:
Technik

K 005:
Flur

K 006:
WC

K 007:
Technik

K 008:
Flur

Gebäude K 1. - Obergeschoss

Gebäude K 1. - Obergeschoss

Gebäude K 1. Obergeschoss

K 101:
Dienstzimmer

K 102:
Dienstzimmer

K 103:
Dienstzimmer

K 104 
Dienstzimmer

K 105 
Toilette

K 106 
Teeküche

K 107 
Flur